Atlas Garage
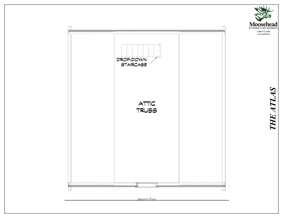
The Atlas is a compact, 754 sq ft cedar log garage designed for durability, charm, and practical storage. Measuring 24' x 24', this log-built structure features a truss roof system and attic truss storage accessible via a drop-down staircase—ideal for seasonal gear, tools, or overflow items. Crafted from Northern White Cedar, the Atlas blends rustic aesthetics with modern functionality, making it perfect for homeowners, hobbyists, or contractors seeking a reliable garage with character. Whether used for vehicle storage, a workshop, or a base for future expansion, the Atlas offers timeless appeal in a small footprint.

