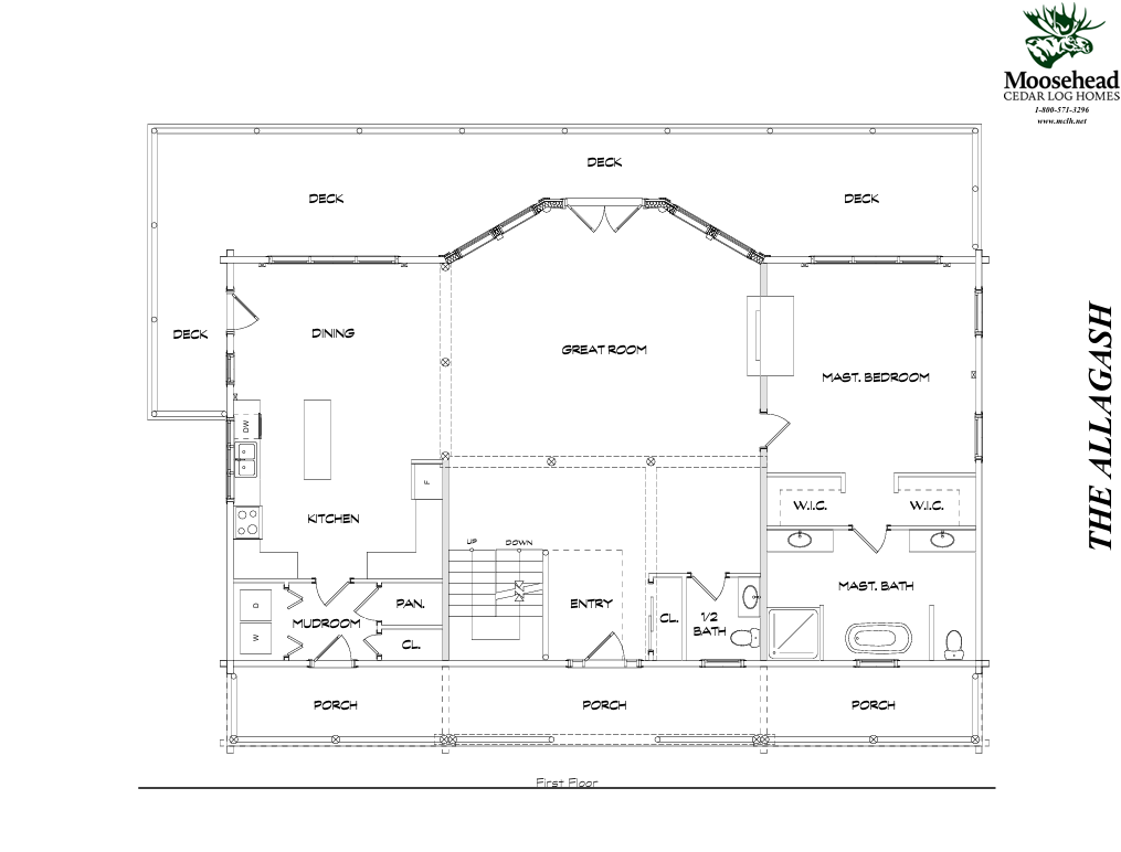
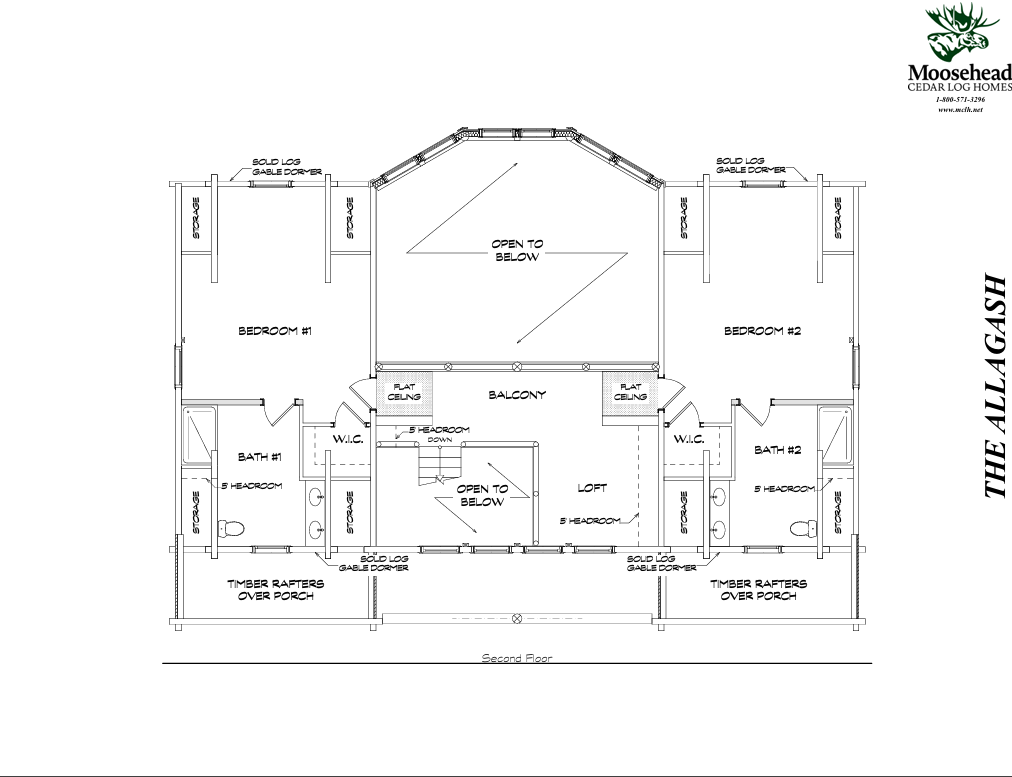
Allagash
The Allagash is a stunning log home- a true showcase of architectural design, with a hardworking layout that makes sense for real life. The front porch entry opens up into the soaring, light-filled great room, while a secondary front entrance conveniently accesses a mudroom complete with laundry, a pantry, and plenty of storage. The kitchen and dining room connect to the great room, with a master suite and half bath rounding out the first floor. Upstairs, two bedrooms flank the balcony and loft. Each bedroom has large walk-in closets, and is designed with space for double sinks and a full tub and shower. With three well-appointed private suites, the Allagash is ideal for multi-family vacations or as a year-round home ready for guests.
3 Bedrooms
3.5 Bathrooms
3015 Sq Ft
Ideal for Overnight Guests
Floor Plan
Make it Your Own
Tailoring each log home package to our clients is a service we’re proud to offer. We provide the flexibility to create a custom package, allowing you to swap in (or out) any materials you prefer. Perhaps you’d like a metal roof rather than the standard shingle roof included in our package. Or maybe you’d like to include cedar shakes on your dormers and a stone skirting around your foundation. While these factors depend on building location, and may be provided by other manufacturers, ensuring you get exactly what you want — and nothing you don’t — is our top priority.

